This very important article focuses on All 2023 BECE Likely BDT Surface development Questions and Answers for those preparing for the Junior High School leaving examination.
By the time you are done mastering how to draw the surfaces shared here, you will be able to answer any surface development question in your mock and BECE.
The term development simply implies outlining the surfaces of articles in one place after it has been cut.
Theprisims that will be dealt with in this 2023 BECE Likely BDT Surface development Questions and Answers are
a. Right prism
b. truncated prism
c. Triangular prism
d. Truncated triangular prism
e. Square prism
f. Truncated Square prism
g. Hexagonal Prism
h. Truncated Hexagonal Prism
i. Cylinder
j. Truncated cylinder
Steps for developing a Right prism
To develop the surfaces of a right prism
a. Draw the plan and front elevation of the Right prism to scale.
b. Draw the plan in a convenient number of parts such as (6 or 12 using the T-square and your 30/60 degree sets square for cylinders only)
c. Nest thing is to project the points to the plan of the elevation
d. Project the points on the elevation to the surface to be developed.
e. Transfer the points on the plan to the surface to be developed
f. Look for all intersection points from corresponding points on the plan and elevation.
g. Complete the developed surface through the points located.
READ: How to write informal letters or friendly letters – BECE, WASSCE and GTLE
When drawing ensure that you number the drawing very well and accurately. It is better to number form shorter edges if there are cuts to reduce the burden of joining and save time in joining.
All 2022 BECE Likely BDT Surface development Questions and Answers
Below are all the suggested solutions for the full-size and truncated prisms.
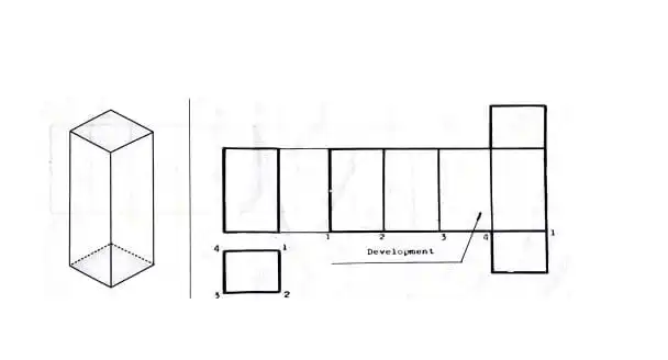
SURFACE DEVELOPMENT OF A RIGHT PRISM

Below are the rest of the types of surfaces the BECE examiners keep repeating. Once you master how to draw the surfaces, each question on them will become very easy for you.
SURFACE DEVELOPMENT OF A TRUNCATED PRISM

SURFACE DEVELOPMENT OF A TRUNCATED HEXAGONAL PRISM
All 2023 BECE Likely BDT Surface development Questions and Answers

SURFACE DEVELOPMENT OF A HEXAGONAL PRIMS

SURFACE DEVELOPMENT OF A CYLINDER
All 2023 BECE Likely BDT Surface development Questions and Answers

SURFACE DEVELOPMENT OF A TRUNCATED CYLINDER
All 2023 BECE Likely BDT Surface development Questions and Answers

SURFACE DEVELOPMENT OF A TRUNCATED SQUARE PRISM

SURFACE DEVELOPMENT OF A TRUNCATED SQUARE PRISM

SURFACE DEVELOPMENT OF A TRUNCATED TRIANGULAR PRISM
All 2023 BECE Likely BDT Surface development Questions and Answers

SURFACE DEVELOPMENT OF A TRIANGULAR PRISM


The Ghana Education News Editorial Team is a specialized collective of education researchers, journalists, and policy analysts dedicated to providing high-fidelity reporting on the Ghanaian academic landscape. Serving as a primary bridge between governing bodies—including the Ghana Education Service (GES) and WAEC—and the public, the team leverages over a decade of combined experience to serve students, parents, and educators nationwide.
Lead Architect & Editor-in-Chief
The team is led by Wisdom Kojo Eli Hammond, a distinguished Ghanaian Edu-Tech Entrepreneur, AI Solutions Developer, and Product Architect with over 25 years of cross-disciplinary experience in education, finance, and digital media. Wisdom is the visionary force behind SkulManager, Ghana’s premier school management ecosystem, and the Lead Consultant at Education-News Consult.
A self-taught innovator, professional Web Designer, and regular columnist on GhanaWeb, Wisdom engineered SkulManager.com as the only platform strictly tailored to the GES Curriculum. His technical leadership has redefined educational assessment through a Hybrid Marking Ecosystem, pioneering the BECE and WASSCE Home Mock services—a unique fusion of WAEC-trained human examiners and advanced AI marking engines operational since 2022.
Wisdom’s 360-degree view of institutional challenges is grounded in his tenure as College President and Lecturer at Pinnacle College (Achimota), as well as his background as a school administrator and accountant. He is a dedicated lifelong learner currently advancing his studies at the Accra Institute of Technology (AIT), with academic ties to the University of Professional Studies, Accra (UPSA).
An accomplished author, his works include Returnees of the Dead Forest (UK Published), Simplified Beacon of Light (850+ Q&A), and The Leader in Me. A foundational pillar of the award-winning NGO Human Rights Reporters Ghana (HRRG), Wisdom is committed to building intelligent systems that solve societal problems and prepare the next generation of Ghanaian students for a digital future.
Contact: 0550360658 | Portals: GhanaEducation.org, GhanaEducationNews.org, SkulManager.com, BECEPrep.com. Educationnewsconsult.com etc